
一、用途
DDF系列单进风离心通风机是一种效率高的单进风风机,该风机振动小、风量大,适用于风量宽广的场合,也可作为一般通风换气用。该系列通风机排送的介质为空气及无腐蚀性,不自燃,不含有粘性物质的气体,其温度不超过80'C.
二、型式
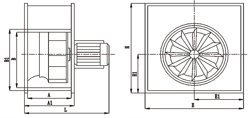
DDF系列单进风离心通风机均为单吸入进气。风机叶轮为后向叶轮,叶轮直接安装在电动机轴上,结构紧凑,装拆维修方便。风机均可制成左旋转或右旋转两种型式。从电动机轴端正视,叶轮按顺时针旋转,称为右旋转风机,以“右”表示;按逆时针旋转,称为左旋转风机,以“左”表示。风机的出口位置以机壳的出风口角度表示,可制成0”、90”、180”. 270” 四种。
三、结构
风机由叶轮、机壳、进风口、电动机等部件组成。
1.叶轮:用钢板焊接而成,叶片均为12片、焊接于前盘与后盘中间,叶片为后弯板形,前盘为双曲线型。叶轮经过静、动平衡校正,保证运转平稳,噪声低,使用寿命长。
2.机壳:用钢板焊接成蜗形壳,整体结构。
3.进风口:收敛式进风口用钢板冲压(或旋压)成形,截面呈流线型,气流进入叶轮阻力小。制成整体结构,用螺栓固定在机壳入口侧。
四、风机的使用
1.只有在风机设备完全正常的情况下方可运行。
2.如风机设备在检修后开动时,则需注意风机各部位是否正常。
3、定期清除风机及输送管道内部的灰尘、污垢及其杂质,并防止生锈。.
4、对风机设备的修理,不允许在运转中进行。
5、如发现电机电流过大,超出电机額定电流,首先先停止开关,立即检查风机叶轮旋转方向是否和箭头所指方向一致,如果相反应立即重新调整接线。
6、如发现流量偏大,不符合使用要求,或短时间内需要较小的流量,可利用节流装置进行节。
7.在风机的开车、停车或运转过程中,如发现振动等不正常现象时,应立即停止运转并进行检查。
五、风机的性能参数
DDF系列单进风离心通风机,其产品的性能参数
均指标准状况下的风机性能参数。
产品特点:后倾单板叶型,体积小、风量大、能耗低、噪声低、安装简易
传动结构:A式
产品机号:630#-800#
风量范围:20000-35000m3/h
风压范围:550-800pa
产品用途:喷烤漆房、空调、净化、涂装等系统通风
DDF系列单进风离心通风机安装外型尺寸
DDF系列单进风离心通风机外形图

DDF系列单进风离心通风机安装外形尺寸

DDF系列单进风离心通风机性能参数表


集科技开发、产品设计、制造销售、安装服务为一体的现代化工科型经济实体
 
          扫一扫 手机站
 
             
            